Interior室内装饰

依利安达办公楼装修设计

项目概况

依利安达办公楼装修设计

△ 接待大堂效果图

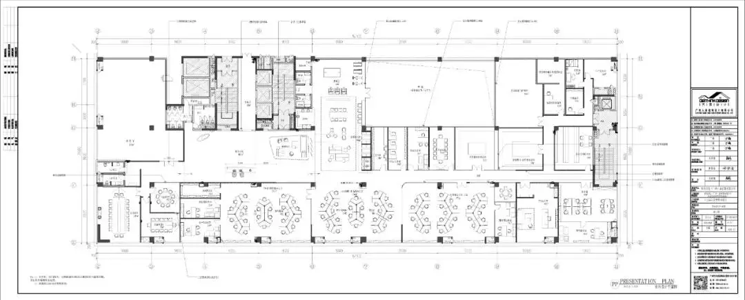
本项目位于广州市黄埔区,该项目为依利安达(广州)显示器有限公司的办公地点,设计面积约3000平方米,室内空间包含办公区、休闲区、健身区、会议区及科技展厅。作为一家高科技产品生产公司的室内空间,设计力求紧贴现代前沿,营造智能化、人文化的办公环境。

过道效果图

△ 电梯间效果图

设计理念来源于大型科幻电影《基地》,向往着无限的宇宙探索和未来的科技,空间中刚硬的线条,结合黑色拉丝不锈钢。大面积蔚蓝渐变色彩,结合夹胶玻璃的工艺,共同增加了空间的张力和空间质感。

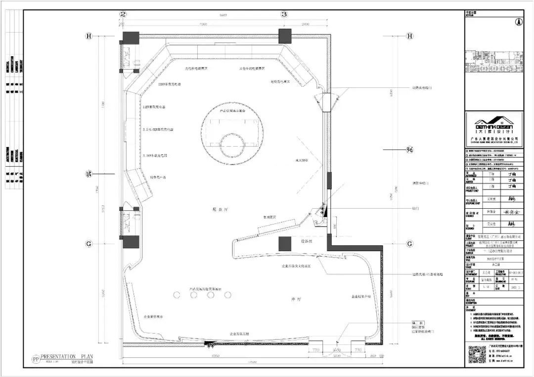
展厅效果图

以视觉感官为初,触达身心深处,打造整洁有序与未来科技感的空间风格。感性的走向、优雅的留白,依托曲线的张力使得空间更具立体感和动态美感,以汇聚、循环、开放逐层递进的状态展开空间叙事主线。

展厅效果图

展厅大面积不锈钢天花,象征了未来科技“无限”伸延。新型材料的大面积应用,彰显设计师对未来空间的大胆衡量。展示区利用数字化科技打造,以虚转实,将企业文化以最新的方式循序渐进地传达给到访者。

新能源办公区效果图

△ 市场部办公区效果图

办公大楼整体思路采用蓝灰系的科技色调,从动静结合入手,结合不同空间的功能属性,采用不同色彩、材质和家具的组合,为员工创造轻松舒适的办公环境,并且帮助访客识别空间的不同功能,演绎创新和多元的工作生态,同时强化企业形象。

△ CEO办公室效果图

△ 开发副总办公室效果图

CEO办公室整体采用木饰面,搭配黑色玻璃储物背景墙,以皮质家具点缀,延续风格的同时,格调稳重。开发副总办公室以和谐统一的色调及家具搭配,营造简洁干练的空间氛围,满足接待会晤功能。

△ 大会议室效果图

△ 小会议室效果图

除了常规的实用性、人性化、美学性等考量维度,设计师兼顾多样化工作节奏、生活化配套空间、绿色环保诉求、现代科技运用等多个方面,以理性的创意展现未来办公场景,促进协同合作、沟通交流和专注工作。

△ 咖啡休闲区效果图

△ 员工餐厅效果图

室内平面图

办公区平面图

展厅平面图

项目名称:依利安达办公楼装修设计

项目规模:3000平方米

项目地址:广州市黄埔区

设计时间:2021年

主创设计:吴英豪

设计单位:大宸设计

返回顶部