Interior室内装饰

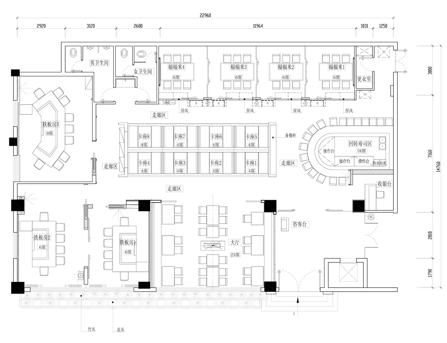
回转寿司

项目概况

回转寿司

返回顶部