Interior室内装饰

富田菊

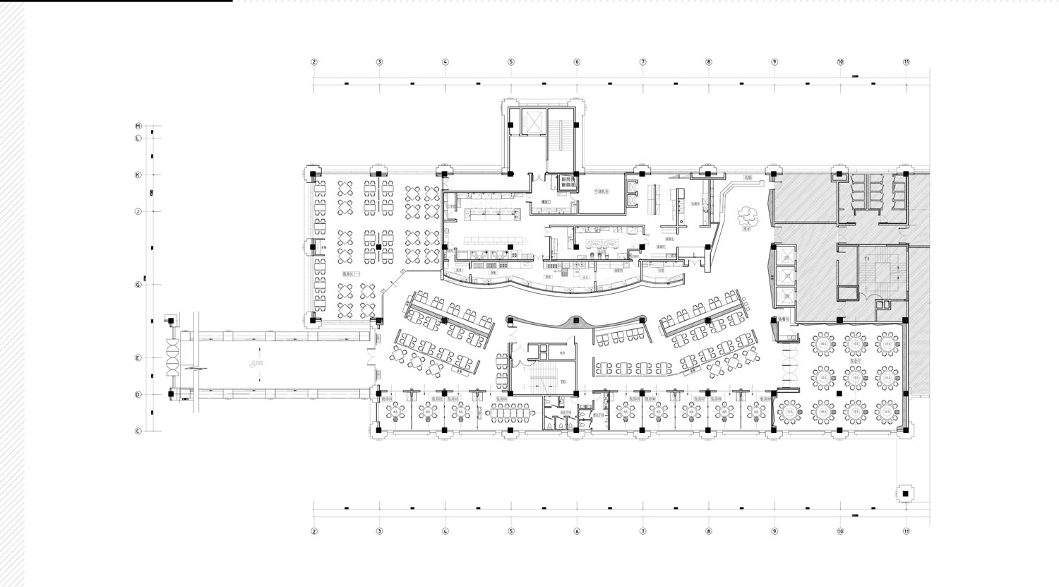
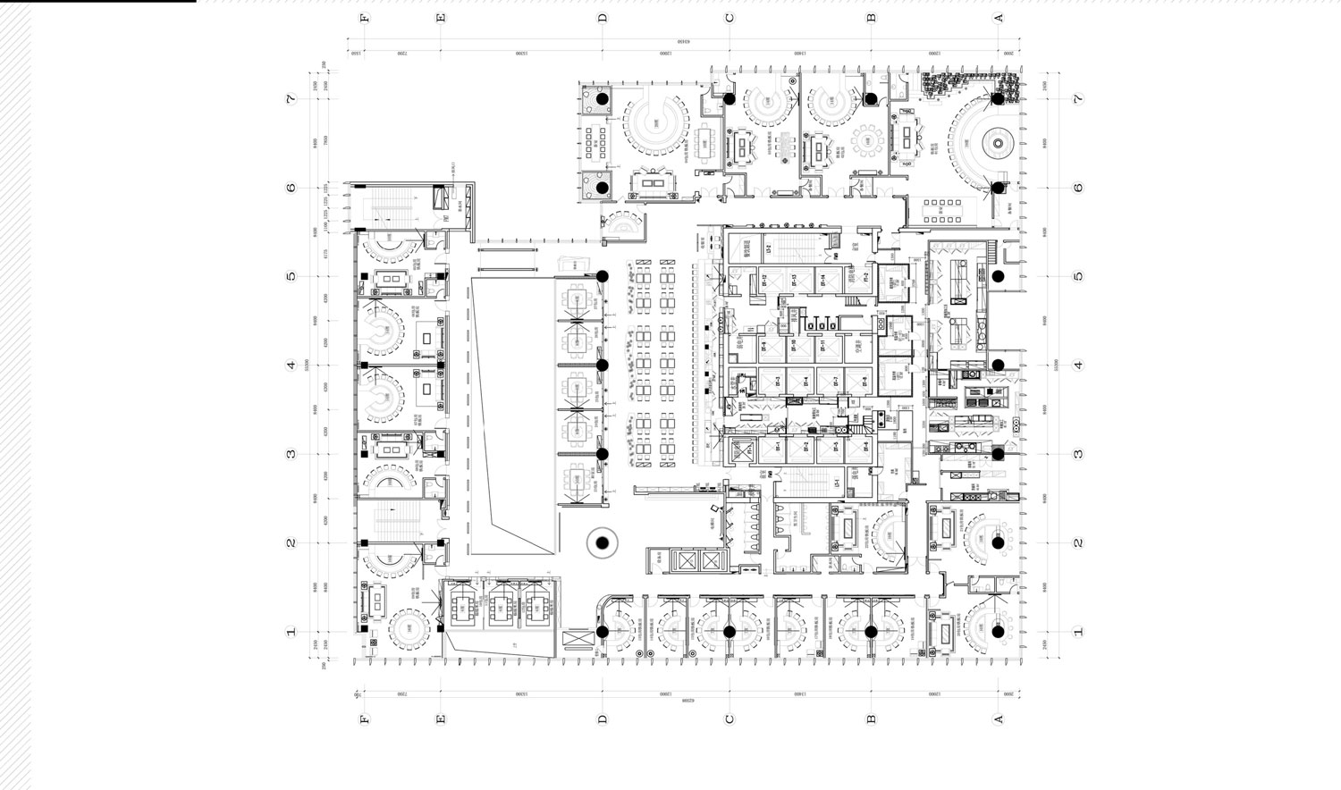
项目概况

富田菊

返回顶部